III ETAP

Nowoczesne mieszkania w zabudowie szeregowej

O Inwestycji

Osiedle Kościuszki – inwestycja realizowana w bezpośrednim sąsiedztwie Rzeszowa, zapewniająca komfort spokojnej okolicy i dogodnego połączenia z centrum, dająca możliwość zamieszkania w przytulnym mieszkaniu z zielonym ogrodem i miejscami parkingowymi.

Osiedle Kościuszki to zlokalizowany w Tyczynie przy ul. Kościuszki kompleks budynków w zabudowie szeregowej z mieszkaniami powierzchni: parter 67,40 i piętro 73,83 m2 oraz budynkiem usługowo-handlowym

Nowoczesny wygląd budynków mimo zachowania tradycyjnej bryły, ograniczającej straty ciepła zapewniają duże przeszklenia okien, szklane balustrady. Całość zaprojektowana z atestowanych materiałów najwyższej jakości ze szczególnym uwzględnieniem parametrów wpływających na komfort użytkowania.

2 - Osiedle Kościuszki Szeregówki Tyczyn
1 - Osiedle Kościuszki Szeregówki Tyczyn

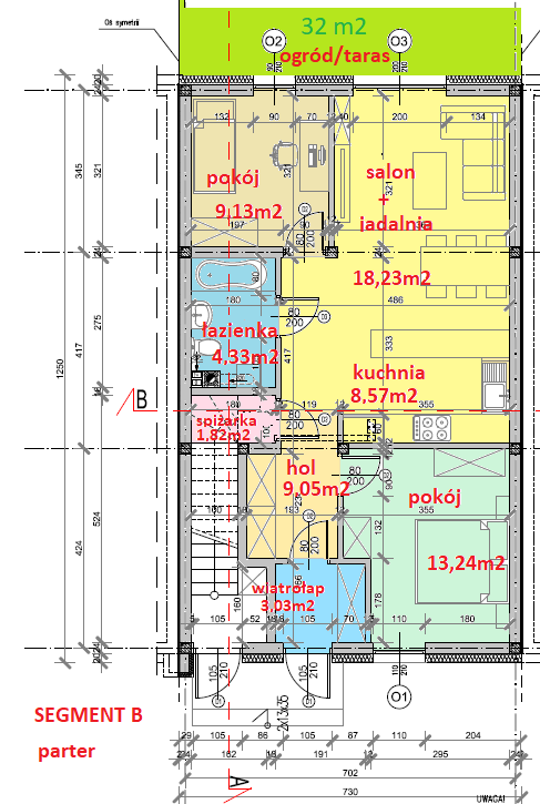
Parter zajmuje niezależne mieszkanie o powierzchni 67,40 m2 z wiatrołapem, holem, spiżarką, łazienką, z połączonymi salonem, jadalnią i kuchnią oraz dwoma niezależnymi pokojami. Całość uzupełnia zielony ogród przyległy do salonu i jednego z pokojów.

Piętro to opcjonalnie dwukondygnacyjne mieszkanie o powierzchni 73,83 m2 z możliwością adaptacji antresoli o powierzchni 20,72 m2 niezależnym wejściem i własną klatką schodową. Trzy niezależne pokoje, łazienka oraz połączone kuchnia, salon i jadalnia stanowią wymarzoną przestrzeń do życia dla całej rodziny. Przestrzeń tę powiększa antresola.

Rzuty

SEGMENT A

SEGMENT B

SEGMENT C

SEGMENT D

PLAN OSIEDLA KOŚCIUSZKI

ETAP 3

Zakończenie III etapu
planowane na IV kwartał 2026r.

Zalety

Osiedle Kościuszki to doskonała lokalizacja w odniesieniu do istniejącej i nowoprojektowanej struktury komunikacyjnej aglomeracji miejskiej!

  • Malownicza i spokojna dzielnica Tyczyna
  • Dużo terenów zielonych
  • Miejsce postojowe do każdego mieszkania
  • Szybki dojazd do centrum miasta zmodernizowaną ul.Sikorskiego
  • Market techniczno-budowlany i spożywczy w bliskiej odległości
  • Plac zabaw dla dzieci
  • Dogodny dojazd do lokalnych szkół, przedszkoli, urzędów
  • Bezpośrednie połączenie komunikacją miejską z centrum Rzeszowa
  • Wysoki poziom energooszczędności budynku

Dom kultury

Przedszkole

Szkoła podstawowa

Przychodnia

Sklep spożywczy

Przystanek MPK

Kościół

Dostępność

Segment A1 - parter

pln 530 000
  • Powierzchnia: 67,40 m2
  • Ogródek: 160 m2
  • Miejsce parkingowe

Segment A1 - pietro

pln 540 000
  • Powierzchnia: 73,83 m2
  • Antresola: 20,72 m2
  • Miejsce parkingowe

Segment B2 - parter

pln 490 000
  • Powierzchnia: 67,40 m2
  • Ogródek: 30 m2
  • Miejsce parkingowe

Segment B2 - piętro

pln 530 000
  • Powierzchnia: 73,83 m2
  • Antresola: 20,72 m2
  • Miejsce parkingowe

Segment C3 - parter

pln 490 000
  • Powierzchnia: 67,40 m2
  • Ogródek: 30 m2
  • Miejsce parkingowe

Segment C3 - piętro

pln 530 000
  • Powierzchnia: 73,83 m2
  • Antresola: 20,72 m2
  • Miejsce parkingowe

Segment B4 - parter

pln 490 000
  • Powierzchnia: 67,40 m2
  • Ogródek: 30 m2
  • Miejsce parkingowe

Segment B4 - piętro

pln 530 000
  • Powierzchnia: 73,83 m2
  • Antresola: 20,72 m2
  • Miejsce parkingowe

Segment D5 - parter

pln 499 000
  • Powierzchnia: 67,40 m2
  • Ogródek: 80 m2
  • Miejsce parkingowe

Segment D5 - piętro

pln 535 000
  • Powierzchnia: 73,83 m2
  • Antresola: 20,72 m2
  • Miejsce parkingowe

Segment A6 - parter

pln 499 000
  • Powierzchnia: 67,40 m2
  • Ogródek: 80 m2
  • Miejsce parkingowe

Segment A6 - piętro

pln 535 000
  • Powierzchnia: 73,83 m2
  • Antresola: 20,72 m2
  • Miejsce parkingowe

Segment B7 - parter

pln 490 000
  • Powierzchnia: 67,40 m2
  • Ogródek: 30 m2
  • Miejsce parkingowe

Segment B7 - piętro

pln 530 000
  • Powierzchnia: 73,83 m2
  • Antresola: 20,72 m2
  • Miejsce parkingowe

Segment C8 - parter

pln 490 000
  • Powierzchnia: 67,40 m2
  • Ogródek: 30 m2
  • Miejsce parkingowe

Segment C8 - piętro

pln 530 000
  • Powierzchnia: 73,83 m2
  • Antresola: 20,72 m2
  • Miejsce parkingowe

Segment D9 - parter

pln 499 000
  • Powierzchnia: 67,40 m2
  • Ogródek: 80 m2
  • Miejsce parkingowe

Segment D9 - piętro

pln 535 000
  • Powierzchnia: 73,83 m2
  • Antresola: 20,72 m2
  • Miejsce parkingowe

Segment A10 - parter

pln 499 000
  • Powierzchnia: 67,40 m2
  • Ogródek: 80 m2
  • Miejsce parkingowe

Segment A10 - piętro

pln 535 000
  • Powierzchnia: 73,83 m2
  • Antresola: 20,72 m2
  • Miejsce parkingowe

Segment B11 - parter

pln 490 000
  • Powierzchnia: 67,40 m2
  • Ogródek: 30 m2
  • Miejsce parkingowe

Segment B11 - piętro

pln 530 000
  • Powierzchnia: 73,83 m2
  • Antresola: 20,72 m2
  • Miejsce parkingowe

Segment C12 - parter

pln 490 000
  • Powierzchnia: 67,40 m2
  • Ogródek: 30 m2
  • Miejsce parkingowe

Segment C12 - piętro

pln 530 000
  • Powierzchnia: 73,83 m2
  • Antresola: 20,72 m2
  • Miejsce parkingowe

Segment D13 - parter

pln 499 000
  • Powierzchnia: 67,40 m2
  • Ogródek: 80 m2
  • Miejsce parkingowe

Segment D13 - piętro

pln 535 000
  • Powierzchnia: 73,83 m2
  • Antresola: 20,72 m2
  • Miejsce parkingowe

Standard inwestycji

STAN SUROWY ZAMKNIĘTY

  1. Płyta fundamentowa z betonu wodoszczelnego, zbrojona, na stabilizowanym podłożu i podkładzie z chudego betonu.
  2. Dodatkowa izolacja przeciwwilgociowa płyty fundamentowej oraz termiczna izolacja krawędziowa. Warstwa drenażowa odprowadzająca wodę z okolic budynku.
  3. Ściany nośne z betonu komórkowego 18 i 24 cm grubości
  4. Schody wylewane żelbetowe
  5. Kominy systemowe z wkładem ze stali nierdzewnej, do pieca kondensacyjnego
  6. Nadproża, słupy, podciągi, wieniec górny żelbetowe, zbrojone
  7. Strop nad parterem (monolityczny) wylewany żelbetowy
  8. Strop nad piętrem [antresola] – belki drewniane
  9. Więźba dachowa impregnowana
  10. Dach kryty blachodachówką grafitową RAL 7016
  11. Rynny i rury spustowe stalowe RAL 7016
  12. Okna PCV 3 szybowe, kolor winchester/biały
  13. Parapety zewnętrzne z blachy powlekanej kolor winchester
  14. Drzwi zewnętrzne wejściowe  stalowe, z izolacją termiczną, kolor winchester
  15. Ścianki działowe bloczek z betonu komórkowego 12 cm
  16. Instalacja elektryczna plus tablica
  17. Instalacja TV i internetowa [światłowód]
  18. Elewacja ocieplona styropianem EPS 70 .20 cm + tynk kolor ecru. Cokół wykończony tynkiem w kolorze szarym
  19. Balustrady zewnętrzne szkło hartowane, zadaszenia systemowe.

STAN DEWELOPERSKI

  1. Instalacja C.O. system ALUPEX
  2. Instalacja wodno-kanalizacyjna [Alupex, PCV]
  3. Instalacja kanalizacji deszczowej
  4. Instalacja gazowa, kocioł gazowy dwufunkcyjny, kondensacyjny
  5. Tynki cementowo wapienne
  6. Wylewki maszynowe z izolacją styropianową EPS100 2x10cm
  7. Poddasze ocieplone wełną mineralną, folią paroizolacyjną oraz z płytą karton-gips
  8. Ogrzewanie podłogowe: Parter – wiatrołap, kuchnia, łazienka; Piętro: kuchnia, łazienka – opcjonalnie wiatrołap / zamiast grzejnika płytowego
  9. Grzejniki płytowe
  10. Ogrodzenie od strony ogródka – kolor grafit systemowy panel ocynk + proszek
  11. Chodniki z kostki betonowej kolor grafit/szary

Lokalizacja

OSIEDLE KOŚCIUSZKI W TYCZYNIE

10 km od centrum Rzeszowa. Łatwy dojazd do centrum Rzeszowa przez: ul. Sikorskiego, Rejtana, Piłsudskiego. Do granicy Rzeszowa ok. 1 km.

Szybki i wygodny dojazd i dojście do centrum Tyczyna oraz centrum handlowego [przystanek MPK linia 37]

Niniejsza oferta nie stanowi oferty handlowej w rozumieniu Kodeksu Cywilnego.
Dla uzyskania wiążących informacji handlowych prosimy o kontakt z działem sprzedaży.

Kontakt

Developer

KP Developer Sp. zoo
ul. Lubelska 22
35-233 Rzeszów

Biuro czynne:
pon-piątek: 8.00 – 16.00
www.oskosciuszki.pl

Sprzedaż

p. Krystian

p. Karolina